본문 바로가기
CONTACT US|KOREA

Hydraulic tools & system

Home > Products > Hydraulic Cylinder Center


Center hole cylinder ESCH(EDCH)-Series

  • Hydraulic tools and system

    · CAPACITY: 5 -100 ton

    · STROKE: 50 -250 mm

    · Max Pressure: 700 bar

    · ESCH: Single acting & Spring return

    · EDCH: Double acting & Hyd return

    · Coupler port PT 3/8

    · Aluminum tube is available (optional).

    · Special size is available(optional).

    Hydraulic tools and system
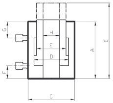
Model Type Tonnage (ton) Stroke (mm) Oil capacity (cc) Effective area
(cm2)
Collapsed
Height A (mm)
Extended
Height B (mm)
Outside
Diameter C (mm)
Cylinder
Bore dia D (mm)
Load
Diameter E (mm)
Bottom to
Port F (mm)
Top to
PortG (mm)
Center hole Dia
H (mm)
Weight (kg)
ESCH-1050 Single acting 10 50 88 176 130 180 75 55 38 26 - 20 3.4
ESCH-2015 20 15 49 32.8 130 145 105 75 55 33 - 27 3.2
ESCH-2050 20 50 164 32.8 165 215 105 75 55 33 - 27 5
ESCH-2075 20 75 246 32.8 190 265 105 75 55 33 - 27 7
* ESCH-20150 20 150 75 55 33 -
ESCH-3060 30 60 286 47.7 180 240 115 90 63 21 - 37 12
* ESCH-30150 30 150 90 63 21 -
ESCH-5075 50 75 530 70.7 238 313 159 115 85 30 - 54 28
ESCH-6075 60 75 671 89.5 238 313 169 125 85 30 - 54 38
* ESCH-60150 60 150 125 85 30 -
ESCH-10075 100 75 1155 154 268 343 218 175 140 45 - 80 59
EDCH-2075 Double acting 20 75 246 32.8 195 270 105 75 55 33 50 27 11
EDCH-3060 30 60 392 65.3 223 283 158 105 80 50 60 37 32
EDCH-30150 30 150 980 65.3 313 463 158 105 80 50 60 37 42
EDCH-30260 30 260 1698 65.3 423 683 158 105 80 50 60 37 55
EDCH-6090 60 90 990 110 329 419 165 135 95 55 75 54 38
EDCH-60130 60 130 1430 110 369 499 165 135 95 55 75 54 42
EDCH-60260 60 260 2860 110 499 759 165 135 95 55 75 54 54
EDCH-10040 100 40 582 145.5 286 326 227 175 150 65 86 80 77
EDCH-100150 100 150 2183 145.5 396 546 227 175 150 65 86 80 107
EDCH-100260 100 260 3783 145.5 506 766 227 175 150 65 86 80 138
EDCH-150200 150 200 4206 210.3 475 675 270 200 160 75 90 85 162
* Consult to factory
  • Hydraulic tools and system
  • Hydraulic tools and system
    

Company : KOREA HYDRAULIC CO.| Brand Name : ENPOS| C.E.O : Chul-soo Sul| Location of headquarter & factory : Noksan Industrial Complex 1591-2, Songjeong-Dong, Gangseo-Gu, Busan, Korea| Tel : +82-51-832-1100| Fax : +82-51-832-1110| E-mail : enpos@enpos.co.kr

© 2013 by KOREA HYDRAULIC CO. All Rights Reserved.